



A Domusa JAKA HFD 40 CONDENS OD kondenzációs gázolajkazán, 38,7 kW hasznos teljesítménnyel (80°C/60°C-on), tökéletes megoldást kínál nagy terek kültéri fűtésére, ahol kiemelkedő teljesítményre és maximális megbízhatóságra van szükség. Ez a modell ötvözi az energiahatékonyságot, a prémium minőségű anyagokat és az időjárás viszontagságainak ellenálló, optimalizált kialakítást. Ideális választás azok számára, akik hőkomfortot, fenntarthatóságot és intenzív használatra tervezett, masszív kazánt keresnek.
A kondenzációs technológiának köszönhetően ez a kazán maximálisan hasznosítja az égéstermékek hőjét, visszanyerve a rejtett hőt, így a névleges alsó fűtőértékhez (P.C.I.) képest 103% feletti hatásfokot ér el. Ez a folyamat akár 30%-os energiamegtakarítást eredményez a hagyományos kazánokhoz képest, jelentősen csökkentve az üzemanyag-fogyasztást és az üzemeltetési költségeket. Az A energiaosztályú tanúsítvány, az ErP európai irányelvnek megfelelően, fenntartható és hatékony működést garantál.
A JAKA HFD 40 CONDENS OD kazánt úgy tervezték, hogy ellenálljon a legszélsőségesebb kültéri körülményeknek is. Zárt burkolatai, EPOXY bevonattal, védelmet nyújtanak a nedvesség, eső és extrém hőmérséklet-ingadozások ellen. Ez a kialakítás állandó és biztonságos teljesítményt biztosít még zord időjárás esetén is, miközben optimalizálja a belső terek kihasználását.
A kazán teste öntöttvasból készült, amely hosszú távon is kiváló kopásállóságot és tartósságot biztosít. Emellett rozsdamentes acél kondenzátort tartalmaz, amely maximalizálja a hőátadást és garantálja a berendezés optimális teljesítményét teljes élettartama alatt.
Fejlett hangszigetelésének és zárt égőjének köszönhetően ez a kazán rendkívül csendesen üzemel, biztosítva a hangkomfortot mind a kültéri, mind a fűtött belső terekben.
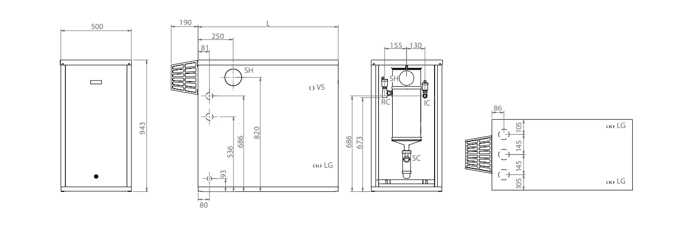
A JAKA HFD 40 CONDENS OD modellt úgy tervezték, hogy számos konfigurációban könnyen telepíthető legyen. A füstgáz elvezetése polipropilén csöveken keresztül is megoldható, ami leegyszerűsíti a szerelést és csökkenti a telepítési költségeket. Intuitív vezérlőpanelje olyan funkciókat kínál, mint a fagyvédelmi termosztát, termohidrométer és világító be-/kikapcsoló, megkönnyítve a használatot és beállítást.
A Domusa JAKA HFD 40 CONDENS OD kazán ideális megoldás nagyobb lakóházak, üzlethelyiségek és egyéb olyan létesítmények számára, ahol erős és megbízható kültéri fűtési rendszerre van szükség. Robusztussága, nagy kapacitása és ellenálló kialakítása biztonságos és hatékony választássá teszi a legkeményebb éghajlatokon is.
A Domusa JAKA HFD 40 CONDENS OD kazánnal a felhasználó egy magas teljesítményű, hosszú élettartamra tervezett, hőkomfortot optimalizáló és környezeti hatást minimalizáló berendezést kap.