



A Domusa JAKA HFD 30 CONDENS OD kondenzációs gázolajkazán kültéri használatra lett tervezve, hogy magas hatékonyságot nyújtson, optimalizálva a belső teret, miközben energiatakarékos és környezetbarát működést biztosít. 28,7 kW hasznos teljesítményével 80°C/60°C-on ez a kazán kiemelkedik fejlett kondenzációs technológiájával, masszív anyagaival és időjárásálló kialakításával. Tökéletes megoldás azok számára, akik hőkomfortot, energia-megtakarítást és megbízható kültéri telepítést keresnek.
A JAKA HFD 30 CONDENS OD modell kondenzációs technológiát alkalmaz, amely visszanyeri az égéstermékek hőjét, így a kazán hatásfoka meghaladja a 103%-ot az alsó fűtőértékre (P.C.I.) vetítve. Ez akár 30%-os megtakarítást jelent a hagyományos kazánokhoz képest, jelentősen csökkentve az üzemanyag-fogyasztást és az üzemeltetési költségeket.
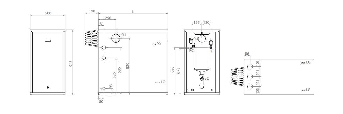
Kifejezetten kültéri telepítésre készült, zárt burkolata EPOXY bevonattal véd a nedvességtől, esőtől és hőmérséklet-ingadozásoktól. A tömített kialakítás hatékony és biztonságos működést garantál még zord időjárási körülmények között is, míg kompakt mérete optimalizálja a lakóterek belső elrendezését.
A kazán teste öntöttvasból készült, amely kopásálló és hosszú élettartamot biztosít. Rozsdamentes acél kondenzátorral szerelték fel, amely maximalizálja a hőátadást és éveken át optimális működést garantál. A kiváló minőségű anyagok csökkentik a karbantartási igényt és növelik a berendezés élettartamát.
Fejlett hangszigetelésének és zárt égőjének köszönhetően a kazán rendkívül csendes, így lakó- és kültéri környezetben is maximális komfortot nyújt.
A Domusa JAKA HFD 30 CONDENS OD kialakítása egyszerűvé teszi a beszerelést bármilyen rendszerbe. A füstgáz-elvezetés polipropilén csöveken keresztül történik, ami leegyszerűsíti a telepítést és csökkenti a költségeket. Előlapi vezérlőpanelje jégmentesítő termosztáttal, szabályozó termosztáttal, világító ki-/bekapcsolóval és további funkciókkal rendelkezik, így a használat intuitív és hatékony.
A Domusa JAKA HFD 30 CONDENS OD kazán ideális családi házak és kereskedelmi helyiségek számára, ahol hatékony és kültérre is alkalmas hőtechnikai megoldásra van szükség. Magas teljesítménye, alacsony karbantartási igénye és masszív kialakítása megbízható választássá teszi a legkeményebb éghajlatokon is.
A Domusa JAKA HFD 30 CONDENS OD kazánnal a felhasználó egy hatékony, tartós és fenntartható berendezést kap, amelyet a maximális hőkomfort és a minimális környezeti hatás érdekében terveztek.