



A Domusa JAKA HFD 20 CONDENS OD kondenzációs gázolajkazánt kifejezetten kültéri telepítésre tervezték, praktikus és hatékony megoldást kínálva olyan otthonok számára, ahol a beltéri hely korlátozott. 19,1 kW hasznos teljesítményével 80°C/60°C-on ez a modell fejlett kondenzációs technológiát, kiváló minőségű anyagokat és időjárásálló kialakítást ötvöz. Kiemelkedő hatékonysága és A energiaosztályú tanúsítványa révén ideális választás azoknak, akik energiahatékonyságot, megtakarítást és fenntarthatóságot keresnek.
A kazán a kondenzációs hatást kihasználva visszanyeri az égéstermékek hőjét, így a névleges alsó fűtőértékhez (P.C.I.) képest 103% feletti hatásfokot ér el. Ez a folyamat jelentősen csökkenti az üzemanyag-fogyasztást, akár 30%-os megtakarítást is eredményezve a hagyományos kazánokhoz képest. Magas hatékonyságát az európai ErP irányelv tanúsítja, amely alacsony környezeti terhelést és alacsonyabb üzemeltetési költségeket garantál.
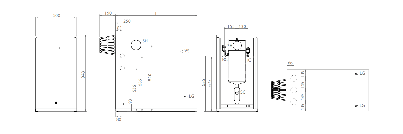
A Domusa JAKA HFD 20 CONDENS OD kialakítása ellenáll a kedvezőtlen időjárási viszonyoknak. Zárt burkolata EPOXY bevonattal van ellátva, amely tartós védelmet nyújt a nedvesség, az eső és a hőmérséklet-ingadozások ellen. Emellett a zártság biztonságos és hatékony működést biztosít bármilyen környezetben.
A kazántest öntöttvasból készült, amely hosszú élettartamot garantál még extrém körülmények között is. A rozsdamentes acél kondenzátor magas hőhatásfokot biztosít, míg a moduláris kialakítás megkönnyíti a karbantartást és növeli a berendezés tartósságát.
Zárt égőjének és kiváló minőségű hangszigetelésének köszönhetően a kazán rendkívül csendes működést biztosít, így a komfort mind a lakásban, mind a kültéren garantált.
A JAKA HFD 20 CONDENS OD modellt egyszerű és sokoldalú telepítésre tervezték. Különböző fűtési rendszerekhez igazítható, a füstgáz elvezetése polipropilén csövekkel történhet, ami egyszerűsíti a szerelést és csökkenti a költségeket. Emellett teljes, könnyen kezelhető vezérlőpanellel rendelkezik, olyan funkciókkal, mint a fagyvédelmi termosztát, termo-hidrométer és világító főkapcsoló.
A Domusa JAKA HFD 20 CONDENS OD kazán ideális megoldás családi házak és olyan helyiségek számára, ahol a fűtőberendezést kültéren kell elhelyezni a belső tér optimalizálása érdekében. Strapabíró kialakítása, energiahatékonysága és alacsony karbantartási igénye megbízható választássá teszi igényes éghajlaton és azok számára, akik a megtakarítást és a fenntarthatóságot helyezik előtérbe.
A Domusa JAKA HFD 20 CONDENS OD kazánnal a felhasználó egy masszív, hatékony és modern igényekhez igazított berendezést kap, amely garantálja a hőkomfortot és a hosszú távú befektetést.