



A Roca WC One beépíthető tartállyal ellátott szerelőkeret praktikus, funkcionális és tartós megoldás függesztett WC-k modern fürdőszobákba történő telepítéséhez. Kompakt kialakítása, egyszerű beszerelése és magas teljesítménye ideális választássá teszi a helytakarékosság és a fürdőszoba esztétikájának javítása érdekében.
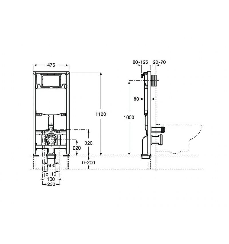
475 x 107 x 1120 mm (hossz, szélesség, magasság) méretekkel ez a szerelőkeret kiemelkedik mindössze 107 mm minimális beépítési mélységével, így tökéletes kis helyiségekbe is. A kompakt tartály teljesen a falba rejthető, letisztult, modern megjelenést biztosítva, amely tökéletesen illeszkedik a fürdőszoba dizájnjához.
A Roca WC One kettős öblítőrendszere támogatja a fenntarthatóságot, lehetővé téve a vízfogyasztás igény szerinti beállítását. Az öblítési beállítások (2/4, 3/4,5 vagy 3/6 liter) felelős vízhasználatot tesznek lehetővé a teljesítmény csökkenése nélkül.
A beépíthető szerelőkeret lehetővé teszi a tartály fal mögé rejtését, így csak a nyomólap és a függesztett WC látható. Ez a kialakítás nemcsak helyet takarít meg, hanem megkönnyíti a padló tisztítását és javítja a fürdőszoba összképét is.
Az optimális teljesítmény érdekében fontos, hogy a szerelőkeretet stabil felületre szereljük, és biztosítsuk, hogy a víznyomás a megengedett tartományon belül legyen (0,1 - 10 Bar). A megfelelő Roca nyomólap használata elengedhetetlen a teljes telepítéshez.
A Roca WC One beépíthető tartállyal ellátott szerelőkeret ötvözi a dizájnt, a funkcionalitást és a fenntarthatóságot, megbízható és esztétikus megoldást kínálva függesztett WC-k telepítéséhez. Tökéletes választás azok számára, akik helyet szeretnének megtakarítani és modernizálni fürdőszobájukat egy magas minőségű rendszerrel.